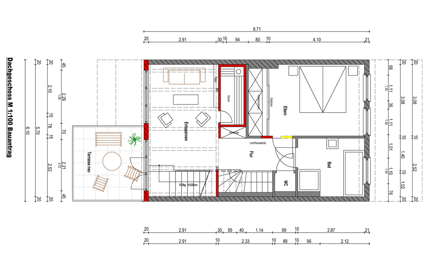
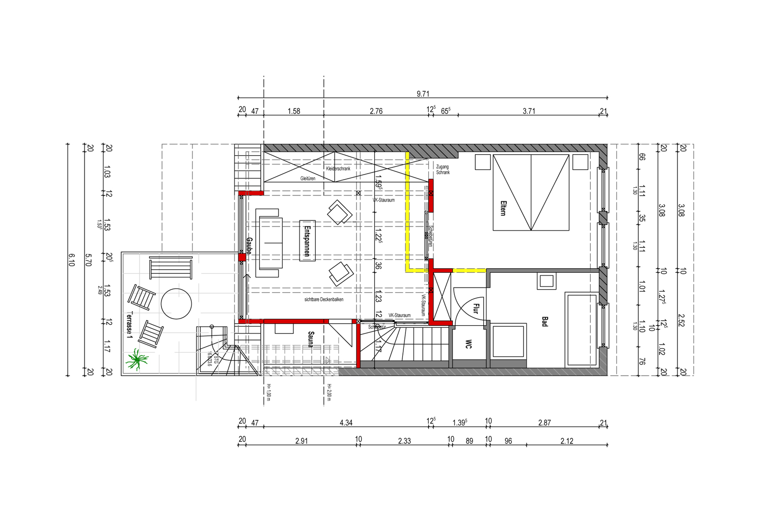
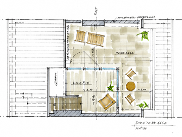
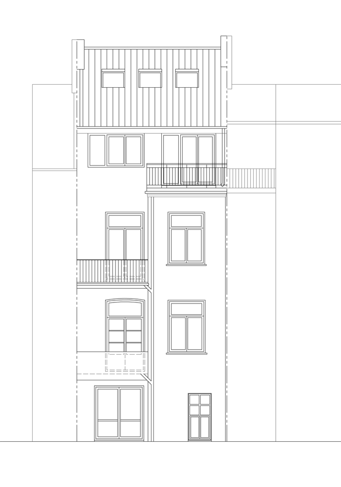
Dachaufstockung
|
Ort Bauvorhaben Bauherr |
Bremen Umbau eines Reihenhauses Steinecke |
Leistungsphasen Fertigstellung |
1 bis 7 2007 |
|
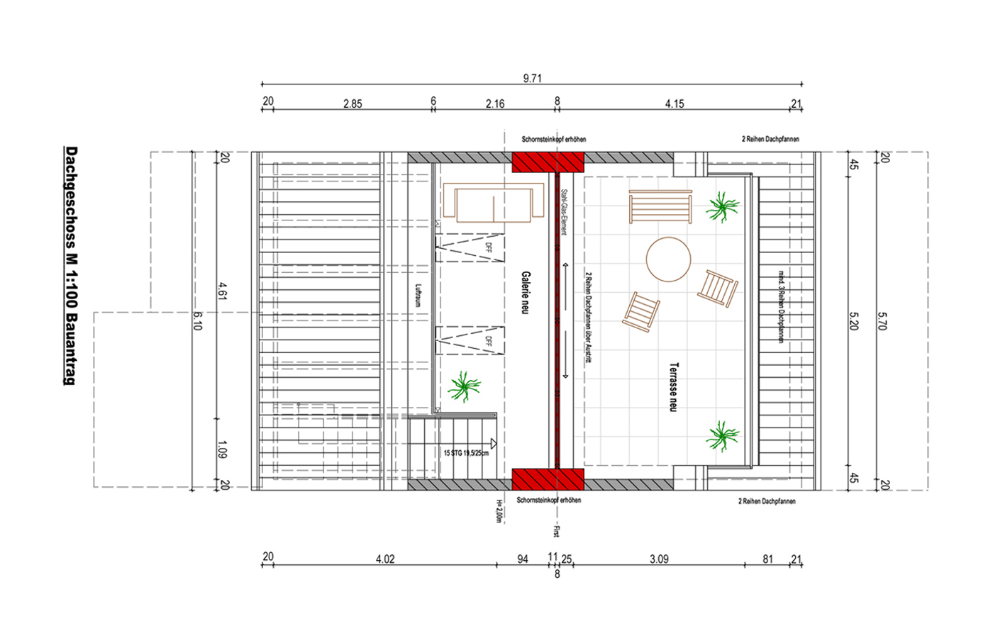
Dachaufstockung eines kleinen Reihenhauses in Bremen / Walle, durch je eine Gaube an der Strassen- und Gartenfassade. Zusätzlich wurde im Dachgeschoss durch das anheben eines Dachausschnittes ein weiterer Raum geschaffen, sowie eine Dachterrasse mit Morgensonne. |
||||

